SH-209-899

Продам 3-этажный дом

Местоположение: Киев, Печерский район, Зверинец, Редутная ул.
5 Комнат
575 м2
6 сот.
Цена
3 700 000 $

Информация

Продается резиденция в Царском Селе, ул. Редутная
Предлагается частная резиденция в одной из самых закрытых и зеленых локаций Печерска там, где до сих пор сохранилась тишина, природный ландшафт и чувство пространства.
Окружение дипломатические резиденции, частные виллы и посольства.
Всего 3 минуты в Ботанический сад им. Гришка,
5 мин до правительственного квартала, станции метро «Арсенальная» и делового центра города.
Резиденция создана в авторском стиле урбан-лаконизма с акцентом на чистую геометрию, свет и простор.
В интерьере натуральное дерево и камень, высокие потолки (3+ м), свободная планировка.
Внутренний двор с ландшафтным дизайном – тихая зеленая зона для отдыха и приватности.
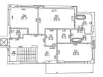
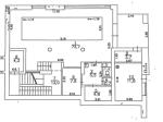
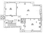
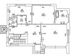
Планировка продумана до мелочей:
575 м² функционального пространства
Три жилых этажа + цоколь
Лифт, соединяющий все уровни
4 спальни, включая главную мастер-спальню с отдельной террасой
7 санузлов с сантехникой премиум-класса
Гостиная с действующим дровяным камином
Просторная кухня с выходом во внутренний двор
Гараж на 2 авто с прямым входом в дом
В цокольном этаже закрытый бассейн, сауна, технические помещения, а также отдельный блок, который может быть переоборудован в укрытие, конструктив позволяет реализовать полноценное безопасное решение.
Это готовый дом в проверенной локации для тех, кто ценит пространство, тишину и качество.

3 700 000 $ стоимость объекта
6 435 $ цена за м2
575 м2
6 сот.
5 комнат
3 Этажность