Це оголошення уже закрито

SH-212-550

Продам будинок

Розташування: Ходосівка, Київська область, Обухівський район
4 Кімнат
118 м2
4 сот.
Ціна
300 000 $

Інформація

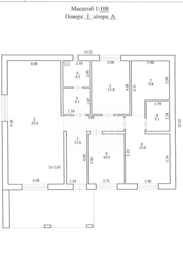
Продажа нового дома в одном уровне в Ходосовке Дом только после дорогостоящего ремонта, 3 спальни, 2 ванные комнаты, кухня студия 40 кв.м.
120 квадратов , терраса , полностью мебели
участок 4 соткі
есть газ

300 000 $ вартість об'єкта
2 542 $ ціна за м2
118 м2
4 сот.
4 кімнат
1 К-ть поверхів