SH-214-700

Продам будинок

Розташування: Іванковичі, Київська область, Обухівський район
3 Кімнат
110 м2
5 сот.
Ціна
135 000 $

Інформація

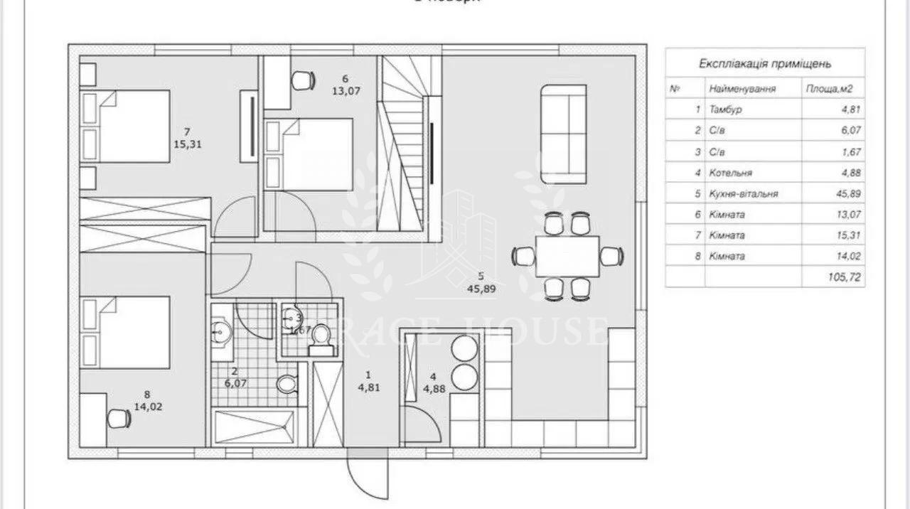
Будинок в Іванковичах, неподалік Києва.
106м2 площа будинку , 3 спальні, 2 санвузли.
Ділянка 5 сот
Центральні комунікації (каналізація, вода), світло.
Опалення Газом, підключений.

Містечко закритого типу, шлагбаум, вулиця не проїздна.
Поруч школа, центр, супермаркет, зупинка транспорту.

135 000 $ вартість об'єкта
1 227 $ ціна за м2
110 м2
5 сот.
3 кімнат
1 К-ть поверхів