SH-215-360

Продам 3-поверховий будинок

Розташування: Козин, Київська область, Обухівський район
6 Кімнат
440 м2
11 сот.
Ціна
280 000 $

Інформація

Вашему вниманию прекрасный дом в центре Козина с выходом к зарыбленому озеру. Расположен в современной коттеджной застройке, все дома поблизости построены и обжиты.

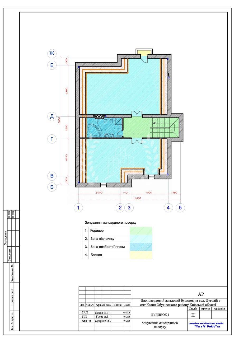
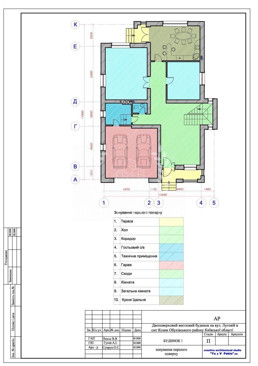
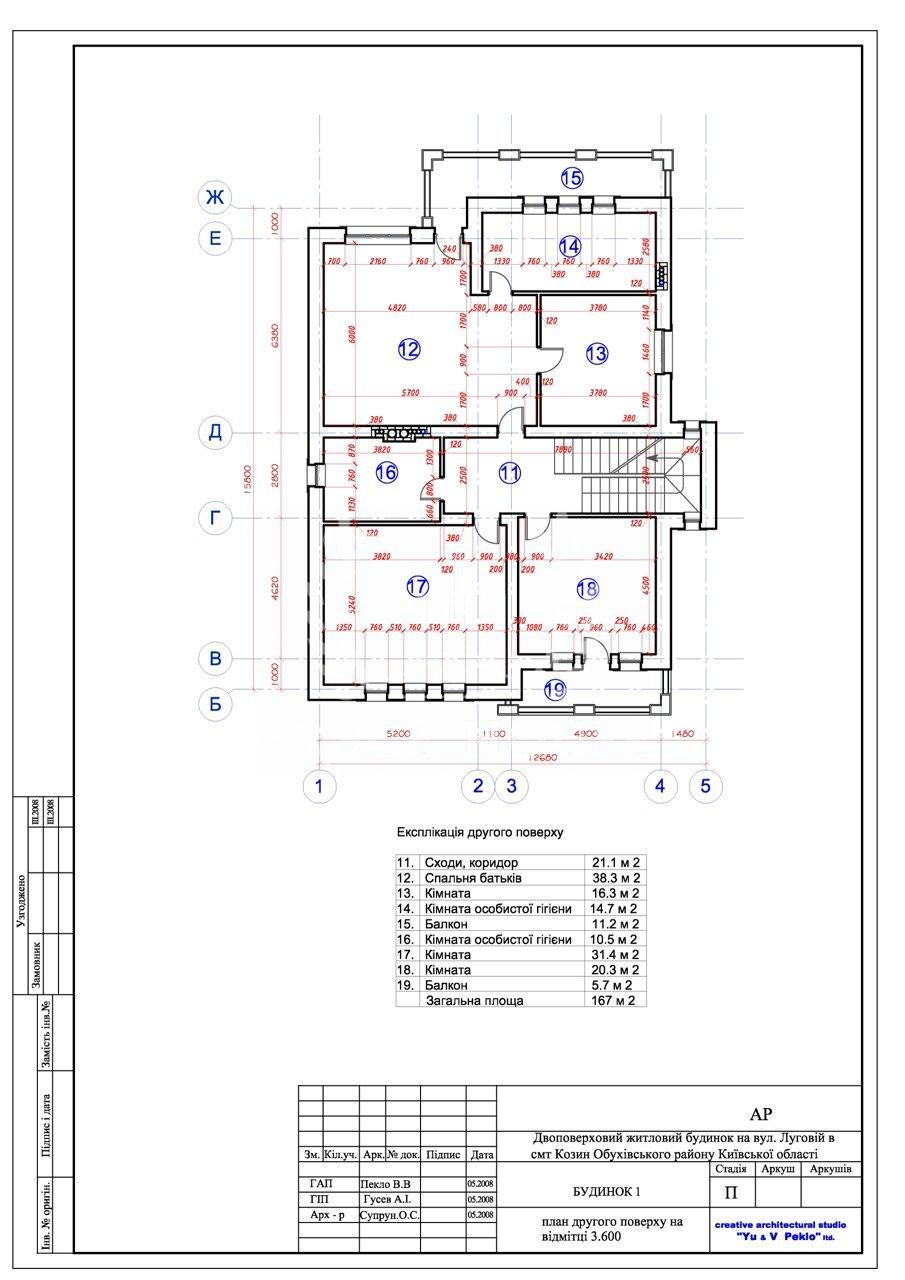
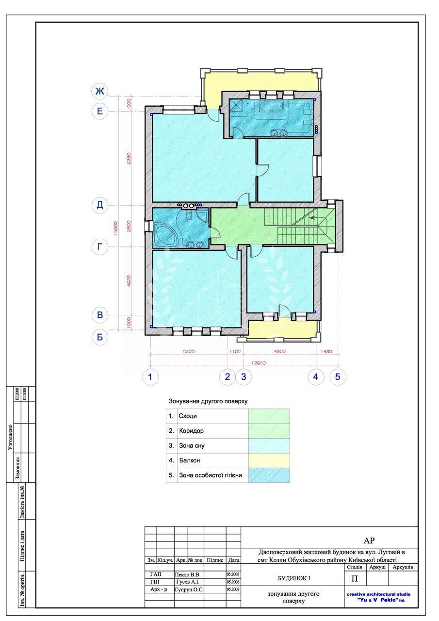
Общая площадь 440м. кв., три этажа, участок 11 соток выход на озеро. Продуманная планировка. В доме 6 спален, кабинет(игровая), 4 с/у, кухня, гостиная, гараж на одну, тех. помещения.

Подъезд полностью асфальтирован, улица тихая. Участок ровный, подготовленный под ландшафтный проект. Качественно построенный дом – это всегда легкость воплощения любых современных интерьерных решений.

Можем гарантировать (есть фото всех этапов работ), что именно этот дом строился для себя, из качественных материалов и для собственной жизни. Построен из полнотелого керамического кирпича, на свайном фундаменте, с монолитными перекрытиями и покрыт битумной черепицей, фасадные работы завершены.

Свой трансформатор, дом заведено электричество (10 кВт с возможностью увеличения мощностей), цетральная канализация, скважина. Разведенные и установленные радиаторы, газ на участке. Подготовлен к чистовой отделке, разведено электричество.

Идеальный дом для любителей классического стиля и качества и планирует поселиться у природы среди элитных застроек.

Козин – лучшая локация, чтобы проживать постоянно, подальше от шума столицы, но одновременно с возможностью быстро добраться до Киева

280 000 $ вартість об'єкта
636 $ ціна за м2
440 м2
11 сот.
6 кімнат
3 К-ть поверхів