SH-216-797

Продам 2-поверховий будинок, КГ «Pleyada Club»

Розташування: Плюти, Київська область, Обухівський район, Київська вул.
4 Кімнат
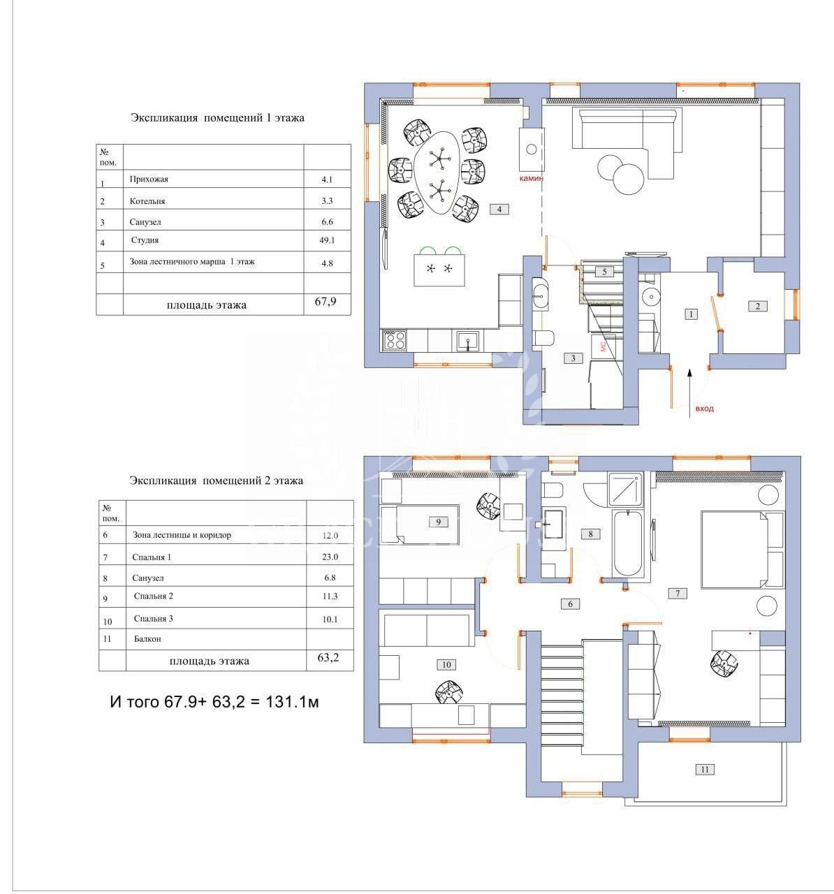
131 м2
8 сот.
Ціна
550 000 $

Інформація

Продажа нового дома в с. Плюты Обуховского района.
Есть собственный выход на канал реки Козинка.
Основной дом-131м2+90м2 Гостевой. Участок 0.08 Га с автополивом, ландшафтным дизайном, фруктовыми деревьями.

Коммуникации:
Отопление – двухконтурный газовый котел (теплый пол);
Электроэнергия-15кВт(есть возможность увеличить);
Система фильтрации воды;
Септик;
Автополив;

Гостевой дом - 90м2 с собственной кухней, двумя отдельными комнатами, с/у, и зоной барбекю.

Парковочная зона на два автомобиля. Закрытый коттеджный городок.

550 000 $ вартість об'єкта
4 198 $ ціна за м2
131 м2
8 сот.
4 кімнат
2 К-ть поверхів