SH-216-799

Продам 2-поверховий будинок, КГ «Pleyada Club»

Розташування: Плюти, Київська область, Обухівський район, Київська вул.
4 Кімнат
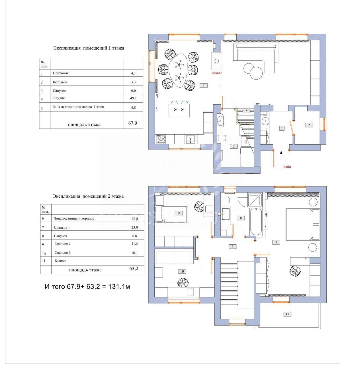
131 м2
8 сот.
Ціна
240 000 $

Інформація

Продам готовий будинок в сучасному котеджному проєкті Pleyada Club з 12 будинків на березі каналу річки Козинка з закритою територією, охороною, відеонаглядом

Місце розташування - Плюти біля Козина в Обухівському напрямку

Архітектура коттеджного містечка створена в стриманому стилі модерн з великими вікнами та світлими фасадами

Планування будинку можна організувати під ваші особисті потреби

Загальна площа будинку - 131м2 c зоною барбекю
Ділянка - 8 соток
2 поверхи

Фундамент: свайне поле, армований залізобетоний ростверк
Стіни: поризований керамічний блок тепло-керам. Товщина зовнішніх стін - 380мм
Утеплення мінеральною ватою

Всі комунікації заведені в будинок
Опалення - газовий котел

На території комплекса чистий власний пляж


240 000 $ вартість об'єкта
1 832 $ ціна за м2
131 м2
8 сот.
4 кімнат
2 К-ть поверхів