SH-217-167

Продам 3-поверховий будинок, КГ QDRO-terraced house

Розташування: Київ, Голосіївський район, Віта-Литовська, Лютнева вул.
5 Кімнат
475 м2
12 сот.
Ціна
1 100 000 $

Інформація

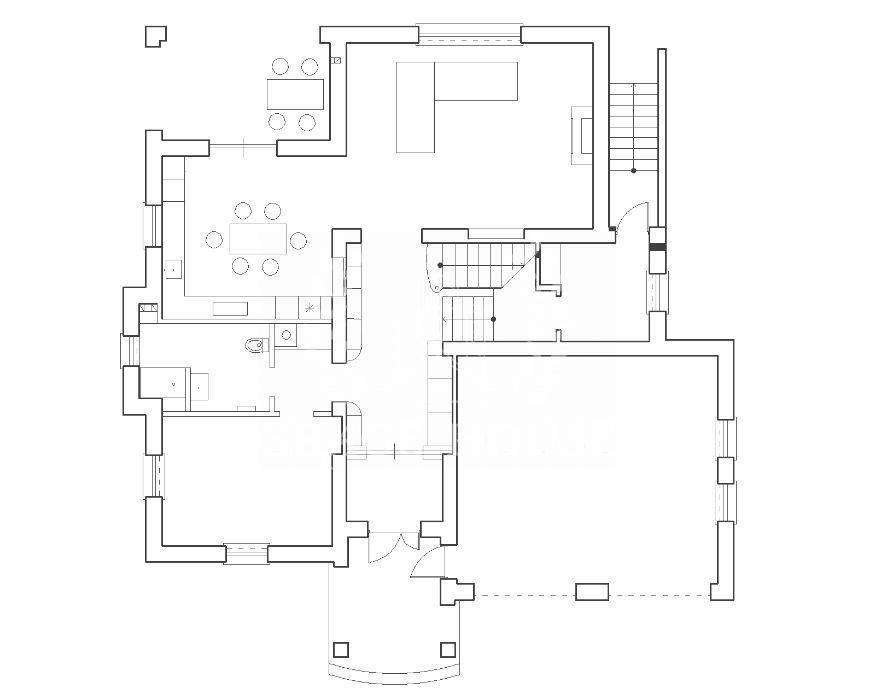
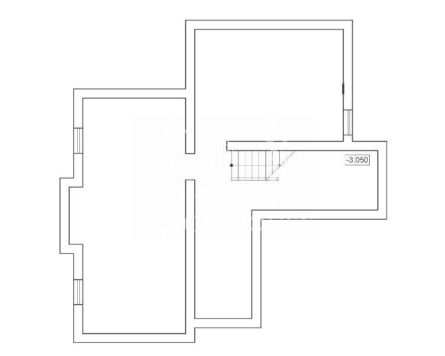
Продается красивый экологичный дом 475 м2 в коттеджном городке Коник на два этажа, мансардный и подвал.
Площадь участка: 12 соток.
Стены – из керамических блоков Poroterm толщиной 44 см, дополнительно утеплены перлитной штукатуркой 3 см.
Крыша – керамическая черепица с утеплителем из базальтовой ваты толщиной 20 см.
Источники тепла: инверторный тепловой насос воздуховода, электрический котел, камин с водяной рубашкой.
На участок заведен газ среднего давления, труба подведена в котельную и заглушена.
Городская канализация, централизованное водоснабжение от собственных скважин, глубиной более 200 м.
В доме - терраса, лоджия, балкон, центральный пылесос, теплый водяной пол на 1-м и 2-м этажах.
В доме две системы водоочистки без использования химии (общая + дополнительная на кухне), переговорная система, охранная сигнализация.
Частичная меблировка.
На участке – автоматический полив газона, капельный полив туй по периметру, освещение. На участке 2 сотки залит фундамент для сауны (домика охраны, гостевого домика, теплицы или др.)
На территории городка «Коник» детская и спортивная площадки, облагороженная 1.5-километровая набережная реки Конек, пляжная зона. За рекой открывается вид на Национальный заповедник Жуков остров.
До остановки общественного транспорта от дома 5 минут пешком. В пешей доступности ТРЦ "Атмосфера", "Домосфера", "ArtMal
l», супермаркеты "Фора", "Фуршет", "Fozzy".

Дом построен в 2011 году из австрийского термоблочка. Отопление: газовый и твердотопливный котл, бойлер 250 литров. Окна компании Rehau, 2-х камерный стеклопакет.
Вода из скважины коттеджного городка, 3-х фазное электричество подключено от 2-х трансформаторов города, канализация городская.

1 100 000 $ вартість об'єкта
2 316 $ ціна за м2
475 м2
12 сот.
5 кімнат
3 К-ть поверхів