SH-218-732

Продам 2-поверховий будинок

Розташування: Козин, Київська область, Обухівський район
5 Кімнат
360 м2
12 сот.
Ціна
1 100 000 $

Інформація

Унікальна пропозиція в елітному містечку біля Козинської дамби — престижна частина Конча-Заспи, «Дніпрова Хвиля».

Будинок — 360 м²
Ділянка — 12 соток із власним виходом до річки та приватним причалом

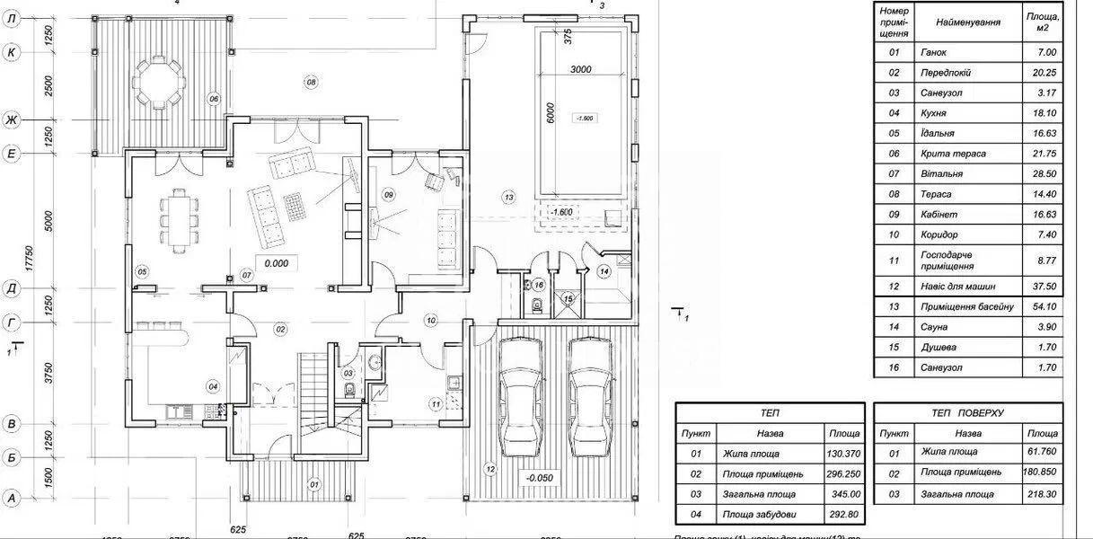
1 поверх:
– Простора вітальня з зоною відпочинку
– Кабінет
– Кухня-столова з виходом на терасу
– Басейн, сауна
– Санвузол (пральна)
– Гараж на 2 авто

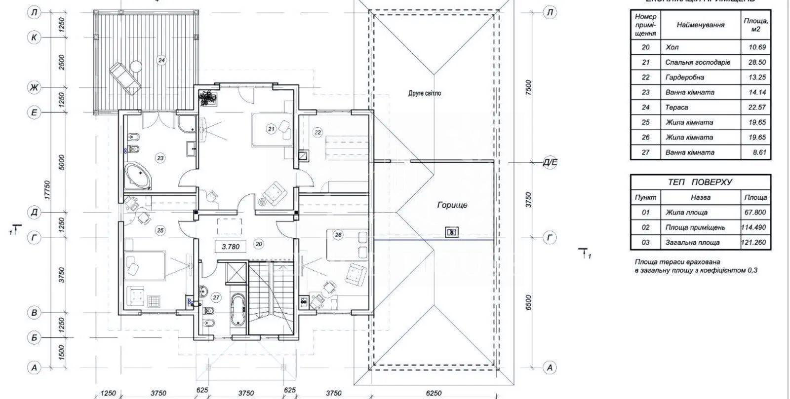
2 поверх:
– 3 спальні
– Санвузол на поверсі
– Майстер-спальня з власним санвузлом, гардеробом і окремою терасою!

Будинок побудовано з якісних матеріалів:
– Керамоблок, монолітні перекриття
– Вікна Reynaers
– Автономні комунікації: власна свердловина, септик, опалення

На території:
– Ландшафтний дизайн з автополивом
– Дорослі дерева, мощення
– Власний причал — ідеально для водного транспорту, риболовлі, спокійного відпочинку

Локація — одна з найкращих у передмісті Києва:
– 20 хв. до центру.
– Поруч гольф-клуб, заповідна зона, елітні сусіди
– Тиша, безпека, закрите котеджне містечко

1 100 000 $ вартість об'єкта
3 056 $ ціна за м2
360 м2
12 сот.
5 кімнат
2 К-ть поверхів