SH-220-665

Продам 2-поверховий будинок

Розташування: Козин, Київська область, Обухівський район
6 Кімнат
500 м2
50 сот.
Ціна
1 700 000 $

Інформація

Продаж нового коттеджа с ремонтом в городке на 6 домов выходом на воду река Днепр с укреплением дом 500 м2 и 50 соток земли. район Башта. село Козин.

Конча - Заспа. Особняк 500 м2, участок 50 соток. Спроектирован известным архитектурным бюро в стиле минимализм.

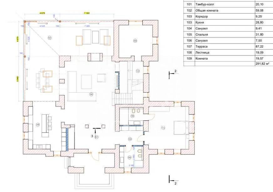
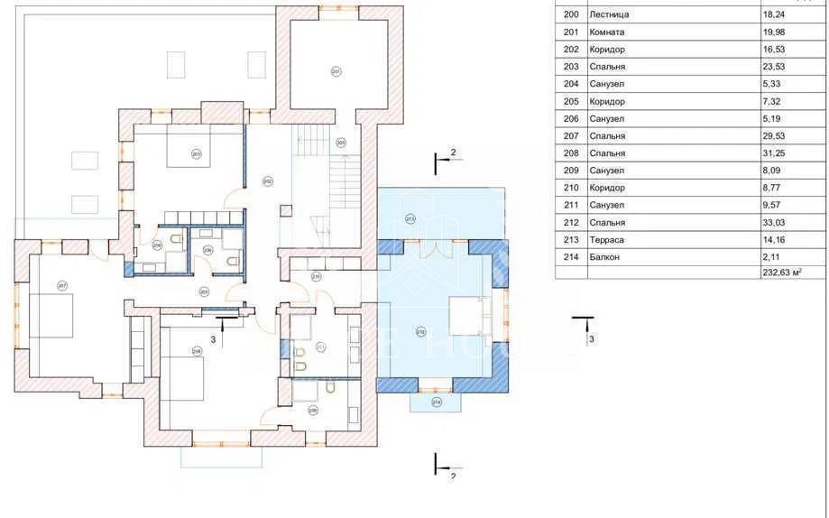
Просторная гостиная с каминной зоной, со столовой и кухней. Камин с топкой double face объединяет гостиную с зимним садом. На цокольном этаже также расположена SPA зона с сауной, фитнес зоной и . На втором этаже расположены 4 спальни, санузел с джакузи, терраса и балкон.

Итальянская и немецкая мебель, декор, картины, Гостевой дом и для охраны отдельный . Подсобные сооружения: дом охраны, летняя кухня, крытая терраса 55 кв.м . Канализация - эпюр-блок на 3000л «Ювента», водоснабжение – артезианская вода с 6-тиступенчатой системой очистки, кондиционеры «MITSUBISHI», теплые полы, электрические роллеты.

На территории 50 соток своя береговая линия, пирс на пляжной зоне 100 кв. м с выходом на реку Днепр.

Эллинг для лодки, лебедка, рельсы для спуска лодки в воду. 150 видов уникальных хвойников, фруктовый сад. Птичник с курицами элитных пород. . Крытый гараж на 3 автомобиля. Закрытый гараж на 2 автомобиля. Система видеонаблюдения цифровая с функцией спутникового мониторинга. Охрана.

1 700 000 $ вартість об'єкта
3 400 $ ціна за м2
500 м2
50 сот.
6 кімнат
2 К-ть поверхів