SH-220-670

Продам 2-поверховий будинок

Розташування: Київ, Голосіївський район, Віта-Литовська
6 Кімнат
200 м2
6 сот.
Ціна
950 000 $

Інформація

Пропонується до продажу унікальний колекційний актив у самому серці заповідної зони Києва. Будинок побудований у 2021 році та спроєктований як повністю незалежне та безпечне житло преміум-класу.

Інвестиційна привабливість та стабільність: Цей об'єкт — ідеальний вибір для тих, хто шукає надійне місце для життя або високоліквідний актив для бізнесу.
• Перевірено часом: З моменту введення в експлуатацію у 2021 році будинок ніколи не простував. Він постійно зайнятий орендарями, що підтверджує його виключну привабливість на ринку навіть у кризові періоди.
• Стан об'єкта: Будинок «живий», повністю укомплектований технікою та меблями високої якості. Оскільки вілла активно використовувалася, вона може потребувати легкого косметичного оновлення — це чудова нагода освіжити інтер'єр під ваші потреби.

Ключові переваги:
1. Повна енергонезалежність та автономія:
o Встановлено сучасний тепловий насос та систему сонячних колекторів для підігріву води. Це забезпечує мінімальні витрати на утримання.
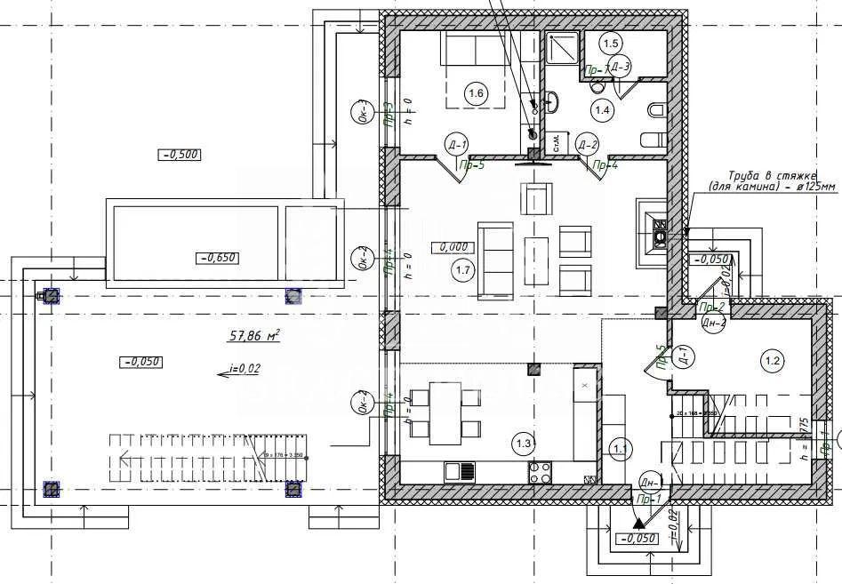
o Альтернативне опалення: Потужна камінна топка з розведенням тепловодів на другий поверх. Будинок залишається теплим навіть за повної відсутності електрики.
o Надійний резервний генератор та система відеоспостереження по всьому периметру.
2. Ексклюзивні зручності:
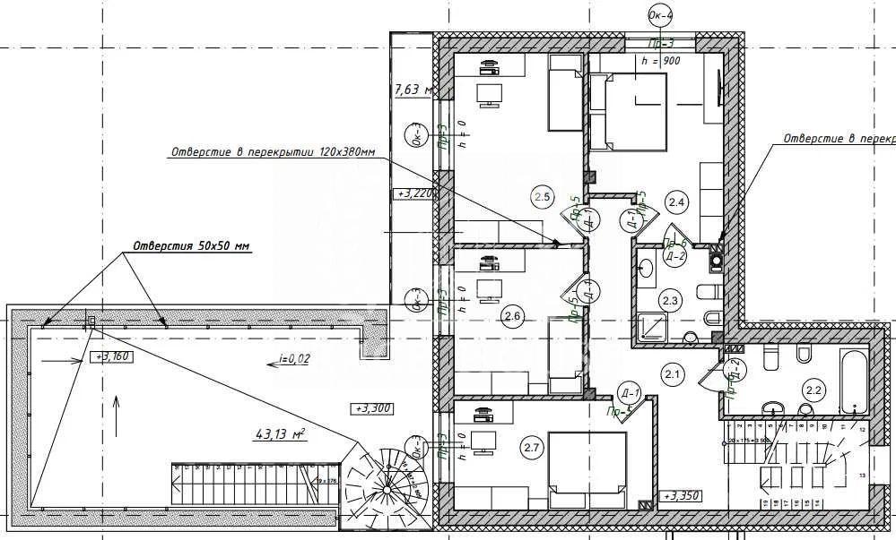
o Плоска експлуатована покрівля з отапливаним басеном та зоною для відпочинку. Панорамний вид на Дніпро, який не перекриють забудовою.
o Власна римська парна всередині будинку.
3. Локація та безпека:
o Закрита територія з обмеженим доступом (в'їзд через шлагбаум). Острівний формат забезпечує абсолютну приватність.
o Всього 15 хвилин до Печерська. Чисте повітря та вихід на велику воду.

950 000 $ вартість об'єкта
4 750 $ ціна за м2
200 м2
6 сот.
6 кімнат
2 К-ть поверхів