SH-220-896

Продам будинок

Розташування: Таценки, Київська область, Обухівський район
4 Кімнат
212 м2
10 сот.
Ціна
420 000 $

Інформація

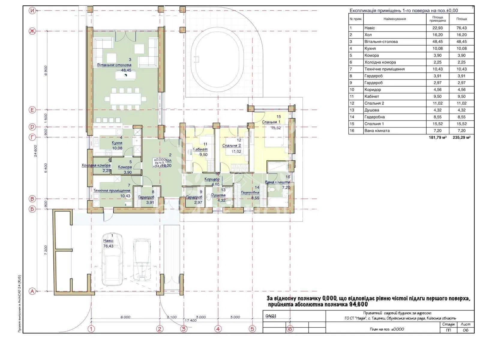
Продаж будинку площею 212 м² у стилі BarnHouse з власним пірсом та виходом до річки Стугна та Дніпро. Будинок розташований у садовому товаристві «Надія» у селищі Таценки. Стильний, унікальний, індивідуальний проєкт.
Три окремі кімнати (включно з «головною спальнею» з ванною кімнатою та великою шафою), кухня-студія з двома окремими коморами, камінна кімната з 6-метровими стелями та виходом на велику терасу (52 м²) з видом на воду, вітальня з двома гардеробними, котельня/пральня, літня кухня під терасою зі скляним пірамідальним світловим люком і виходом до пірсу з укріпленим берегом. Критий простір для двох авто із секційними автоматичними воротами та підсобними приміщеннями. Усі кімнати, кухня, вітальня та камінний зал мають панорамні алюмінієві вікна та окремі виходи через розсувні двері до внутрішнього двору та пірсу.
Будинок виготовлений із сучасних матеріалів високої якості. Фундамент стрічковий, утеплений, глибина становить 2200 мм.
Стіни — газовий блок товщиною 300 мм, ізольований базальтовою ватою 100 мм, завершений декоративною штукатуркою, частково стоячими фальцевими панелями.
Перекриття монолітні. Покрівля скатна – фальцеві панелі, плоска – гідроізоляційна ПВХ мембрана, утеплювач 300мм. Підлога - залізобетонна монолітна плита, утеплювач 150мм, водяна тепла підлога (санвузли, вітальня, кухня, камінний зал, прохід в спальні кімнати), стяжка 100мм посилена арматурною сіткою. Вікна – панорамні, енергозберігаючі із двокамерними склопакетами, заповненими інертним газом аргон. У проекті передбачена можливість встановлення припливно-витяжної вентиляції з рекуперацією енергії, опціонально з функціями обігріву, охолодження та фільтрації повітря.
Земельна ділянка 10,26 соток. Асфальтований під'їзд.

420 000 $ вартість об'єкта
1 981 $ ціна за м2
212 м2
10.26 сот.
4 кімнат
1 К-ть поверхів